S様邸

テレワークに対応した書斎やこれまで足りなかった収納の増設などのご相談からはじまりました。
こんな風にリフォームしたいというご希望を箇条書きにしたものやスケッチをいただき、それを図面やパースで具体的にご提案して打合せを重ね、少しづつ形になっていきました。
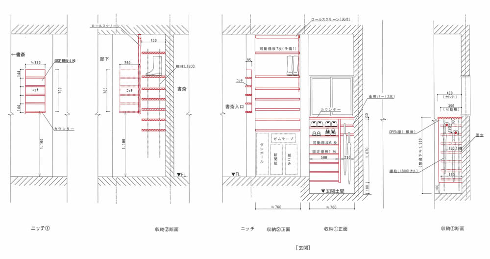
スタンディングスタイルで使用なさる書斎のため、デスクや棚の位置を細かく決めていきました。
収納計画については、季節家電などの大きさを1つ1つ測ってそのものの住所を決め、図面に落とし込むことで完成後に希望通りに出し入れできる使い勝手のよい空間になったと思います。
before
after

before
after

before
after

before
after
